Page 381 - Window-Door-Hardware-2020
P. 381
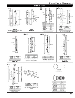
Patio Door HarDware
MORTISE LOCKS
Part # Finish
19-504B Black
19-504G Green Part # Finish
19-504PY Putty 16-460 Steel Hooks
Tan
16-544W 16-333 19-504TN White 16-460SS Stainless Steel
19-504W
Two Point Mortise Lock & Strike. White PEACHTREE Storm Door Mortise Lock Hooks
VANGUARD Two Point Patio Door Lock
Part # Finish
Part # Finish 16-453 Steel Part # Finish Part # Finish
16-452 Steel 16-453SS Stainless Steel 16-574 Steel 16-680 Steel
16-452SS Stainless Steel Two Point Mortise Lock w/ Short Face 16-574SS Stainless Steel 16-680SS Stainless Steel
Two Point Lock with Faceplate Plate. Center Latch Thumbturn Dual Hook Mortise Lock No Trim plate
GEMINI/ PGT GEMINI I & II
FAS 27
10-32 Binder Post
Part # Size
Part # Finish FAT 181 10-32 x 3/4"
900-20972A Aluminum FAS 107L 10-32 x 1-1/8"
900-20972A-BR Brass
Part # Finish FAT 168 10-32 x 1-1/4"
16-775B Black Door Lock Guard. Angled Back With FAT 180 10-32 x 1-1/2"
16-775W White Screws FAS 106 10-32 x 2-1/2"
Multipoint Mortise Lock With FAT 171 10-32 x 3"
Keeper & Screws
381

